Con Delibera di Giunta Comunale n. 38 del 10 aprile 2025, il Comune di Montefredane ha formalmente adottato il Piano Urbanistico Attuativo (PUA) denominato “Piano degli Insediamenti Produttivi in località Alimata”, ai sensi dell’art. 10 del Regolamento Regionale n. 5/2011.
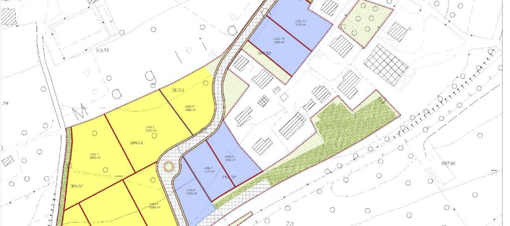
Lo strumento urbanistico attuativo interessa un’area strategica a ridosso del Comune di Avellino e dell’Area ASI di Pianodardine, classificata come Zona Territoriale Omogenea D2 – produttiva di completamento dal vigente PUC. In gran parte di proprietà comunale, l’area è destinata ad accogliere attività produttive, artigianali, commerciali e funzioni innovative, nel pieno rispetto della sostenibilità ambientale e dell’equilibrio paesaggistico del territorio.
Il PUA, redatto dall’arch. Antonio Verderosa, uno dei massimi esperti in materia di urbanistica comunale e pianificazione edilizia, rappresenta uno strumento di elevata qualità tecnica e giuridica, che introduce modelli innovativi per la trasformazione urbana e per l’assegnazione dei lotti produttivi.
Tra le principali innovazioni previste:
• Coinvolgimento attivo di soggetti privati singoli e consorziati, anche attraverso modelli societari per l’urbanizzazione delle aree;
• Suddivisione in sub-comparti, con priorità agli interventi sostenibili;
• Esclusione di attività industriali a rischio o ad alto impatto ambientale, in favore di insediamenti compatibili e qualificati;
• Attenzione alla qualità ecologica, energetica e paesaggistica dell’intervento.
“Con l’adozione del PUA in località Alimata, – spiega il sindaco Ciro Aquino – Montefredane compie un passo decisivo verso uno sviluppo ordinato, moderno e sostenibile. Abbiamo voluto dotarci di uno strumento serio, concreto e funzionale, in grado di attrarre investimenti, creare occupazione e generare valore aggiunto per tutta l’Area Vasta di Avellino. Puntiamo a diventare un polo produttivo attrattivo, efficiente, ecocompatibile. Questo risultato è il frutto di una visione strategica chiara e condivisa, che mette al centro il territorio, le sue vocazioni e il suo futuro. Ringrazio l’architetto Verderosa per la qualità del lavoro svolto e tutta la struttura comunale per l’impegno e la professionalità.”
